微信掃碼
不僅是專業的導購
還是聊車的好伙伴
微信掃碼
不僅是專業的導購
還是聊車的好伙伴
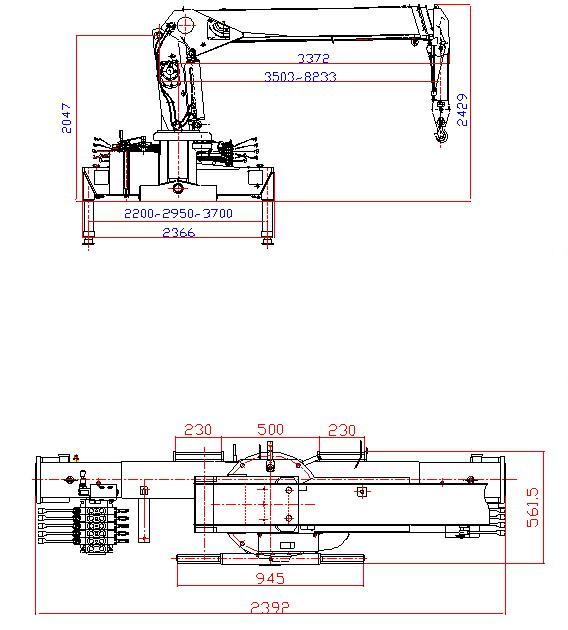
5噸隨車吊三節直臂程力威牌隨車起重機參數--SQ5SA2
5噸三節直臂東風140隨車吊

5噸三節直臂東風145隨車吊

|
5噸隨車吊三節直臂起重 機型號 |
SQ5SA2 (5噸三節直臂) | |||||||||||
|
最 大 起 重 質 量kg |
5000 |
額定功率kw |
16 | |||||||||
|
最 大 起 重 力 矩n.m |
112500 |
額定流量 |
50L/min | |||||||||
|
截 面 形 式 |
五邊形 |
回 轉 機 構 |
回轉速度r/min |
2/3 | ||||||||
|
節 數 |
3 (伸二節) |
回轉范圍° |
360(任意) | |||||||||
|
長 度m |
3.5-8.23 |
支 腿 |
型 式 |
直立撐腿 | ||||||||
|
最大作業半徑m |
8.0 |
跨 距m |
2.2-3.7 | |||||||||
|
伸出速度m/s |
4.73/21 |
液 壓 系 統 |
系統壓力mpa |
18 | ||||||||
|
變 幅 范 圍 |
1-76 |
油箱容積L |
65 | |||||||||
|
起臂速度°/s |
76/13 |
安全裝置 |
過 轉 報 警 | |||||||||
|
最大起升高度m |
9.9 |
自 重kg |
1550 | |||||||||
|
單繩允許拉力N |
12250 |
匹配卡車 |
裝載質量5噸以上的卡車 | |||||||||
|
吊鉤提升速度m/min |
12.5 |
安裝空間 |
| |||||||||
|
鋼絲繩直徑mm |
9.3 |
說明:上表參數是發動機轉速為1500r/min情況時的額定參數。 | ||||||||||
|
鋼絲繩長度m |
60 | |||||||||||
|
起重能力對照表 | ||||||||||||
|
工作半徑m |
2.5 |
3.0 |
3.5 |
5.0 |
5.5 |
6.5 |
7.5 |
8.0 | ||||
|
額定負荷kg |
5000 |
4600 |
2828 |
1580 |
1360 |
1050 |
830 |
750 | ||||
重汽豪沃檢修車(大流量排水搶險車) 整車型號:CL5040TPS6ACC 現車價格美麗 底盤配置:豪華寬體駕駛室、濰柴151、160馬力、萬里揚5檔、2.0T/4.5T、700R16鋼絲胎、原廠導流罩,半包圍駕駛室內飾,液晶儀表盤,帶中控、電窗、織物座椅、氣喇叭、原廠空調,全包裹、車鑰匙遠程遙控玻璃升降!重汽豪沃檢修車(大流量排水搶險車)圖片展示:?
程力汽車公司主要銷售:冷藏車、吸污車、環衛垃圾車、吸糞車、道路清掃車、高空作業車 地址:湖北省·隨州市·南郊平原崗·程力汽車工業園 網站備案號:鄂ICP備18017768號-134
鄂公網安備 42130202001503號